着重质量,可按需定制,满足您的生产要求 源头厂家,品质制造
办事处服务热线: 13253557957 厂家总部服务热线: 18738555339
» 联系人:王经理
» 电 话:13253557957
» 地 址:山东省泰安岱岳工业园
龙门吊出租
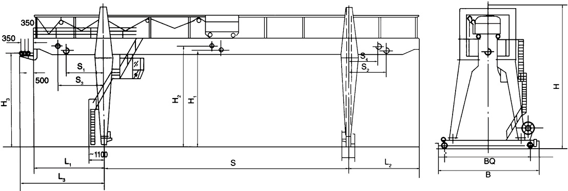
A型双主梁门式起重机特点: A型双主梁门式起重机,A型双主梁门式起重机厂家,A型双主梁门式起重机价格 A型5~160吨双梁吊钩门式起重机 A Type 5~160t Double Beam Hook Gantry Crane A型双主梁吊钩门式起重机适用于露天货场、铁路沿线作业进行一般的装卸及起重搬运工...
A型双主梁门式起重机,A型双主梁门式起重机厂家,A型双主梁门式起重机价格 A型5~160吨双梁吊钩门式起重机 A Type 5~160t Double Beam Hook Gantry Crane
A型双主梁吊钩门式起重机适用于露天货场、铁路沿线作业进行一般的装卸及起重搬运工作。A型门架结构,上面带有马鞍结构,受力合理,为国内使用最广泛的双主梁门式起重机。根据其结构形式,可分为包厢式MG,额定起重量5~320t;以及减 少风阻而设计的桁架式MGH结构,额定起重量为5~160t。 防爆电机及电气制作和检验应符合GB3836.2-2000《爆炸性气体环境用电气设备隔爆型电气设备“d”》。GB3836.1—2000《爆炸性气体环境用电气设备第一部分:通用要求》
河南卫华起重机驻山东办事处
联系人:王经理
电 话:13253557957
固 话:0373-5992566
地 址:山东省泰安岱岳工业园
卫华起重机山东办事处主营龙门吊销售,架桥机租赁,行车行吊,集装箱龙门吊,双梁起重机,门式起重机,桥式起重机,提梁机,运梁车等多种起重设备.20年起重设备行业经验,为满足客户的不同需求.24小时热线:13253557957
微信二维码