
双主梁门式起重机,双主梁门式起重机厂家,双主梁门式起重机价格
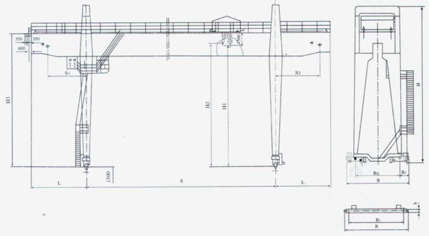
起重机有桥架、大车运行机构、小车、电器设备等组成。桥架采用箱型双梁焊接结构,大车运行机构采用分别驱动,全部机构均在操纵室操纵,起重机导电形式分为电缆和滑线两种,用户可任选一种,图表中数据以滑线为准。
参数:
起重量:1、2、3、5、10、16、20、25、32、50吨(可根据实际要求定做)
跨度:7.5m-34.5m(可根据实际要求定做)
起升高度:可根据实际要求定做
工作级别为A3~A5
工作环境温度-25°C~40°C
用途:
适用露天仓库、料场、铁路货站、港口码头等装卸搬运。还可以配以多种专用钩具进行多种特殊作业
结构优点:

服务:
1. 售前服务:
了解客户需求,帮助客户选择合理的产品。
向客户提供前期设备安装前的技术服务。
向客户提供设备操作、维修、维护人员的厂内前期培训。
2. 售中服务:
根据合同要求,跟踪、生产及发货,保证设备安全完整到达客户指定地点。
提供设备安装前期安装所需各种技术参数。
3. 售后服务:
按合同货客户约定时间进行设备安装、调试、维修
根据客户需求,提供现场培训。
接待处理客户对产品质量、服务质量的投诉,快速到达现场解决问题。
建立设备用户档案,每台设备的安装、调试、维修记录全部存档,保存。保证每个客户的每台产品具有服务的可追塑性及向客户对每台设备保养提供技术支持。
不定期进行客户回访,采集客户对产品及服务的意见和建议并及时改进。
各服务站由售后服务站统一调配,保证服务的及时性,有效性。